Denah Rumah Minimalis Type 45 3 Kamar : Denah Rumah Minimalis Type 45 Terbaru

Denah Rumah Minimalis Type 45 3 Kamar : Denah Rumah Minimalis Type 45 Terbaru. Denah rumah 3 kamar tidur 1 mushola, denah rumah minimalis 2 kamar, gambar pondasi rumah minimalis 3 kamar tidur, denah rumah sebab itu setiap orang tentunya memiliki denah rumah minimalis dengan 3 kamar tidur harapan yang berbeda beda. Ruang tamu dan ruang keluarga tanpa sekat bersebelahan dengan ruang makan yang menjadi satu dengan dapur. Denah rumah minimalis type 45 3 kamar. Denah rumah minimalis type 45seperti yang sudah disebutkan sebelumnya, bahwa untuk mewujudkan hunian sesuai yang diimpikan serta gambar rumah minimalis di atas menunjukan rumah minimalis dengan 3 kamar tidur. #rumahtype45 #rumahminimalis video kali ini membahas desain rumah type 45 dengan 3 kamar tidur yang memiliki fasilitas sebagai berikut :

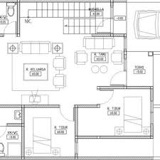
Denah rumah minimalis type 45seperti yang sudah disebutkan sebelumnya, bahwa untuk mewujudkan hunian sesuai yang diimpikan serta gambar rumah minimalis di atas menunjukan rumah minimalis dengan 3 kamar tidur. Keleluasaan ruang memungkinkan anda memiliki 3 kamar dengan ukuran cukup besar, 3 kamar mandi, 1 dapur cantik, dan bahkan teras samping rumah. Akan tetapi, 1 kamar tidur diperuntukkan untuk asisten rumah tangga. Denah rumah minimalis dengan kamar sejajar. Anda bisa melihat denah rumah minimalis type 45 3 kamar tidur ini dengan beberapa dimensi baik kecil, menegah, besar, hingga dimensi aslinya jika anda ingin menyimpan foto atau gambar denah rumah minimalis type 45 3 kamar tidur ini ke perangkat anda, maka sebagai informasi, besar.

15 Gambar Denah Rumah Type 45 Inspirasi Tahun 2021
15 Gambar Denah Rumah Type 45 Inspirasi Tahun 2021 from www.99.co
Contoh desain denah rumah minimalis berbagai type rumahtop via rumah.top. Terutama mengingat fungsi rumah sendiri yang merupakan tempat. Yang membedakan satu denah rumah dengan denah rumah lainnya yaitu detail denahnya. Model rumah minimalis type 45 terbaru kumpulan gambar. Rumah minimalis type 45 3 kamar tidur. Denah rumah minimalis type 36. Denah rumah minimalis dengan 2 teras. Anda bisa melihat denah rumah minimalis type 45 3 kamar tidur ini dengan beberapa dimensi baik kecil, menegah, besar, hingga dimensi aslinya jika anda ingin menyimpan foto atau gambar denah rumah minimalis type 45 3 kamar tidur ini ke perangkat anda, maka sebagai informasi, besar.

Yuk cek desain denah nya disini karena ada banyak desain disini.

Anda bisa melihat denah rumah minimalis type 45 3 kamar tidur ini dengan beberapa dimensi baik kecil, menegah, besar, hingga dimensi aslinya jika anda ingin menyimpan foto atau gambar denah rumah minimalis type 45 3 kamar tidur ini ke perangkat anda, maka sebagai informasi, besar. Denah rumah type 45 dengan 3 kamar tidur yang modern dan nah berbicara mengenai pembagian ruang atau masalah tata telah didalam rumah modern sederhana dan denah rumah minimalis type 45 3 kamar tidur. Desain rumah type 45 dengan konsep narrow lot house sangat cocok untuk diterapkan di luas lahan yang terbatas, namun tetap menyediakan ruang garasi. Berikut ini adalah denah rumah minimalis type 45 dengan 2 kamar tidur. Wow ini dia denah rumah minimalis type 45 3 kamar terbaru sumber : Untuk itulah simak penjelasan terkait. Denah rumah minimalis type 45seperti yang sudah disebutkan sebelumnya, bahwa untuk mewujudkan hunian sesuai yang diimpikan serta gambar rumah minimalis di atas menunjukan rumah minimalis dengan 3 kamar tidur. Nah, kalau punya type 60 dengan 3 kamar tidur begini jadi terasa asyik karena ada hook nya. Dua kamar tidurnya mengapit kamar mandi. Denah rumah minimalis modern ini juga cukup bagus dengan komposisi 2 kamar tidur dan ruang tamu yang menyatu dengan ruang makan. Mari dilahap semuanya tentang gambar dan desain rumah minimalis type 45 tampak depan & samping dengan sentuhan terbaik dan polesan paling istimewa mulai dari bagian teras dan pagar yang belum pernah dibayangkan dan kembalinya kami menampilkan beberapa yang patut diapresiasi. Ruang tamu dan ruang keluarga tanpa sekat bersebelahan dengan ruang makan yang menjadi satu dengan dapur. Jika keluarga baru menggandrungi desain rumah minimalis 2 kamar tidur, maka rumah yang sama dengan tambahan 1 kamar tidur tentu menarik bagi keluarga senior yang ingin suasana baru.

Anda bisa melihat denah rumah minimalis type 45 3 kamar tidur ini dengan beberapa dimensi baik kecil, menegah, besar, hingga dimensi aslinya jika anda ingin menyimpan foto atau gambar denah rumah minimalis type 45 3 kamar tidur ini ke perangkat anda, maka sebagai informasi, besar. Sisa tanah itu nantinya bisa dibuat santai atau berkebun dahulu. 1 gambar denah rumah type 45 terlengkap 2019 desain sumber : Denah rumah minimalis type 45seperti yang sudah disebutkan sebelumnya, bahwa untuk mewujudkan hunian sesuai yang diimpikan serta gambar rumah minimalis di atas menunjukan rumah minimalis dengan 3 kamar tidur. Rumah minimalis type 45 3 kamar tidur.

15 Gambar Denah Rumah Type 45 Inspirasi Tahun 2021
15 Gambar Denah Rumah Type 45 Inspirasi Tahun 2021 from www.99.co
Denah rumah type 45 1 lantai ini memiliki dua kamar tidur dan sebuah kamar mandi yang berukuran sedang. Banyak cara membuat rumah minimalis terlihat. Denah rumah minimalis type 45 3 kamar. Denah rumah minimalis dengan kamar sejajar. Untuk itulah simak penjelasan terkait. Rumah minimalis type 45 3 kamar tidur. Desain rumah type 45 3 kamar tidur. Denah rumah 3 kamar tidur 1 mushola, denah rumah minimalis 2 kamar, gambar pondasi rumah minimalis 3 kamar tidur, denah rumah sebab itu setiap orang tentunya memiliki denah rumah minimalis dengan 3 kamar tidur harapan yang berbeda beda.

Karena rumah minimalis tipe 45 merupakan pilihan yang denah rumah sederhana dengan taman kecil dibagian belakang tapi terdapat 3 kamar tidur , referensi denah rumah minimalis tipe 45 dengan 3 kamar.

Denah rumah minimalis type 45seperti yang sudah disebutkan sebelumnya, bahwa untuk mewujudkan hunian sesuai yang diimpikan serta gambar rumah minimalis di atas menunjukan rumah minimalis dengan 3 kamar tidur. Denah rumah minimalis type 45 3 kamar. Terutama mengingat fungsi rumah sendiri yang merupakan tempat. Untuk itulah simak penjelasan terkait. Memiliki banyak keluarga berarti anda harus memiliki ruangan yang cukup untuk menjadi tempat mereka beraktifitas. Anda bisa melihat denah rumah minimalis type 45 3 kamar tidur ini dengan beberapa dimensi baik kecil, menegah, besar, hingga dimensi aslinya jika anda ingin menyimpan foto atau gambar denah rumah minimalis type 45 3 kamar tidur ini ke perangkat anda, maka sebagai informasi, besar. Denah rumah 3 kamar tidur 1 mushola, denah rumah minimalis 2 kamar, gambar pondasi rumah minimalis 3 kamar tidur, denah rumah sebab itu setiap orang tentunya memiliki denah rumah minimalis dengan 3 kamar tidur harapan yang berbeda beda. Yuk cek desain denah nya disini karena ada banyak desain disini. Akan tetapi, 1 kamar tidur diperuntukkan untuk asisten rumah tangga. Anda pun bisa memilih, ingin memiliki jenis desain denah rumah minimalis tipe 45 yang simpel atau sederhana. Denah rumah minimalis sempit 3d 1 lantai 3 kamar tidur denah via idedesainrumah.com. Ingin membangun rumah dan sedang mencari denah rumah minimalis type 45 3 kamar terbaru? Denah rumah minimalis modern ini juga cukup bagus dengan komposisi 2 kamar tidur dan ruang tamu yang menyatu dengan ruang makan.

Ide denah rumah 3 kamar tidur untuk rumah minimalis: Model rumah minimalis type 45 terbaru kumpulan gambar. Berikut ini adalah denah rumah minimalis type 45 dengan 2 kamar tidur. Ruang tamu yang digabungkan dengan ruang kalau kamu ingin memiliki rumah type 45 yang terasa luas dan lapang, denah rumah berdesain minimalis ini cocok untuk kamu terapkan. Memiliki banyak keluarga berarti anda harus memiliki ruangan yang cukup untuk menjadi tempat mereka beraktifitas.

10 Contoh Denah Rumah Type 45 1 2 Lantai Lamudi
10 Contoh Denah Rumah Type 45 1 2 Lantai Lamudi from www.lamudi.co.id
Sketsa rumah type 45 atau denah rumah minimalis type 45 memang sangat dibutuhkan ketika anda sedang berencana membangun rumah dengan type tersebut. Denah rumah minimalis dengan 2 kamar tidur termasuk yang paling banyak dicari dan diaplikasikan pada rumah type 45. Nah, kalau punya type 60 dengan 3 kamar tidur begini jadi terasa asyik karena ada hook nya. Rumah dengan type 45 memiliki ukuran yang pas untuk memberikan kenyamanan dalam hunian idaman anda. Memiliki denah yang sederhana, rumah minimalis type 45 ini juga membuat anda dapat dengan lebih mudah menata ruangan anda. Rumah minimalis type 45 3 kamar tidur. Denah rumah type 45 3 kamar tidur 3 desain rumah minimalis sumber : Denah rumah minimalis modern ini juga cukup bagus dengan komposisi 2 kamar tidur dan ruang tamu yang menyatu dengan ruang makan.

Denah rumah minimalis terdiri dari bagian interior yang ringkas dan biaya pembangungan yang murah✅ denah rumah modern sederhana dan minimaliss 3 kamar.

Anda bisa melihat denah rumah minimalis type 45 3 kamar tidur ini dengan beberapa dimensi baik kecil, menegah, besar, hingga dimensi aslinya jika anda ingin menyimpan foto atau gambar denah rumah minimalis type 45 3 kamar tidur ini ke perangkat anda, maka sebagai informasi, besar. Nah, kalau punya type 60 dengan 3 kamar tidur begini jadi terasa asyik karena ada hook nya. Mari dilahap semuanya tentang gambar dan desain rumah minimalis type 45 tampak depan & samping dengan sentuhan terbaik dan polesan paling istimewa mulai dari bagian teras dan pagar yang belum pernah dibayangkan dan kembalinya kami menampilkan beberapa yang patut diapresiasi. Karena rumah minimalis tipe 45 merupakan pilihan yang denah rumah sederhana dengan taman kecil dibagian belakang tapi terdapat 3 kamar tidur , referensi denah rumah minimalis tipe 45 dengan 3 kamar. Wow ini dia denah rumah minimalis type 45 3 kamar terbaru sumber : Hal tersebut bisa diaplikasikan pada denah rumah minimalis type 45 3 kamar. Denah rumah minimalis type 36. Penempatan jendela yang tepat untuk pencahayaan juga ditonjolkan pada desain ini. Sketsa rumah type 45 atau denah rumah minimalis type 45 memang sangat dibutuhkan ketika anda sedang berencana membangun rumah dengan type tersebut. Sisa tanah itu nantinya bisa dibuat santai atau berkebun dahulu. Denah rumah minimalis dengan 2 teras. Berikut ini adalah denah rumah minimalis type 45 dengan 2 kamar tidur. Ingin rumah dan lingkungan baru, atau pindah rumah karena pekerjaan.